Normandie, Eure (27)
Epreville-en-Lieuvin, Église Saint-Pierre
Édifice


L’église Saint-Pierre d’Epreville-en-Lieuvin remonterait au XIIème ou XIIIème siècle mais elle a presque été entièrement remaniée au XVIème siècle, avec notamment la reconstruction du mur sud de la nef, de la première travée du mur nord, et l’ouverture de nouvelles baies ogivales à réseau de pierre. Il ne subsiste de l’édifice antérieur au XVIème siècle, qu’une porte obstruée. La sacristie en pan de bois a été ajoutée au XVIIème siècle et le porche reconstruit au XIXe siècle. Le clocher actuel date de 1862.
L’église était sous le patronage des ducs de Lorraine. Elle est dédiée à saint Pierre et à saint Michel mais on venait y invoquer saint Julien pour les maux du visage.
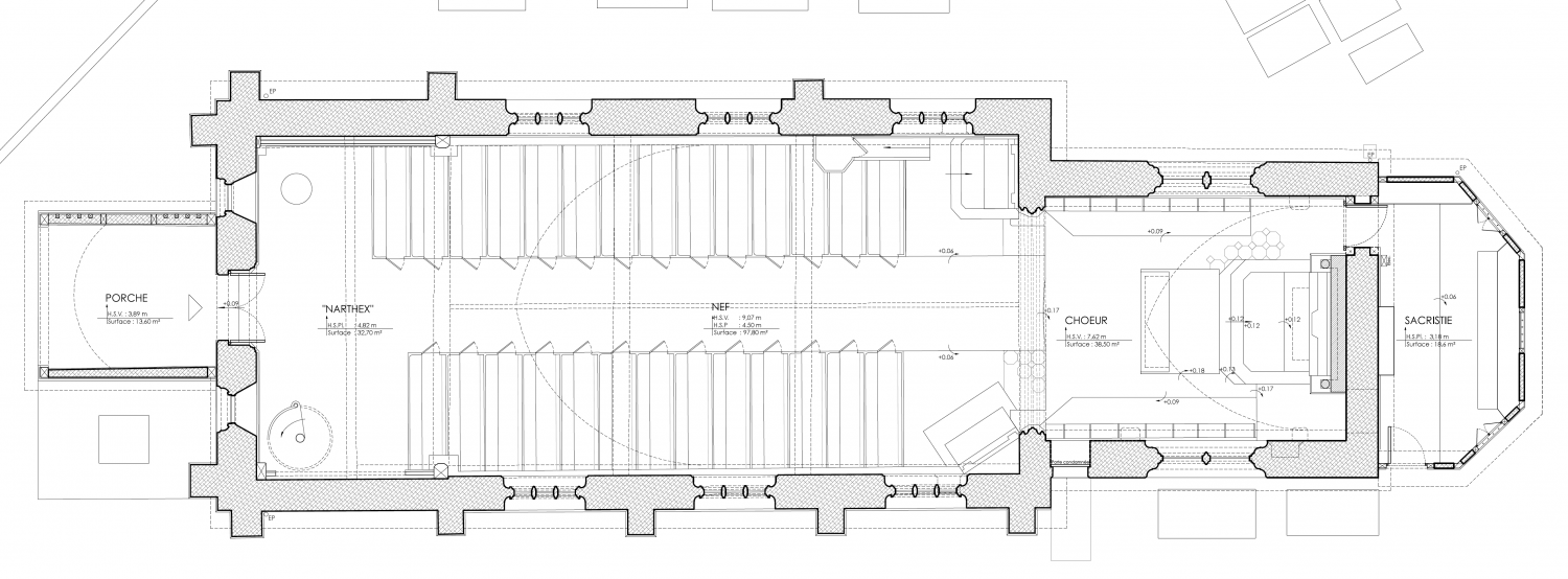
L’église est orientée et suit un plan allongé sans transept. La nef est précédée d’un porche et compte quatre travées et un seul vaisseau. Le chœur en retrait se termine par un chevet plat auquel est flanqué une annexe polygonale à colombages. L’église se remarque par la flèche conique de son clocher. La cloche actuelle date de 1862.
La façade principale à mur pignon se compose d’un porche à colombages et d’une baie en arc brisé percée à droite du porche. Des contreforts bas encadrent l’ensemble. Le clocher de base carrée est surmonté d’une flèche circulaire ou cônique soutenue par des poutres, ce qui lui donne une forme assez particulière.
Les toitures de la nef et du chœur sont en ardoise et en bâtière à pignon couvert. La sacristie est couverte d’une toiture à croupe polygonale. Les murs gouttereaux de la nef sont soutenus par des contreforts et percés de baies en tiers-point à remplages. Le chœur est éclairé par des baies rectangulaires.
Le projet en images
Actualités liées

Immobilier
Le comité choisit d’aider 15 églises pour bien finir l’année
Le comité de la Sauvegarde s’est réuni pour la dernière fois cette année, le 21 novembre. De nombreuses demandes ont été étudiées.

Immobilier
Le printemps de la Sauvegarde : 18 églises aidées en avril
Pour ce troisième comité de l’année 2018, la Sauvegarde de l’Art Français a décidé d’aider à la restauration de 18 églises partout en France. […]

Communication
Un édifice exemplaire
A Mesnil-en-Ouche, dans l’Eure, l’église de Pierre Ronde, isolée depuis la disparition du hameau médiéval au sein duquel elle fut bâtie, délaissée par […]







