Provence-Alpes-Côte d’Azur, Alpes—Maritimes (06)
Antibes, Chapelle Saint-Jean
Édifice


Description
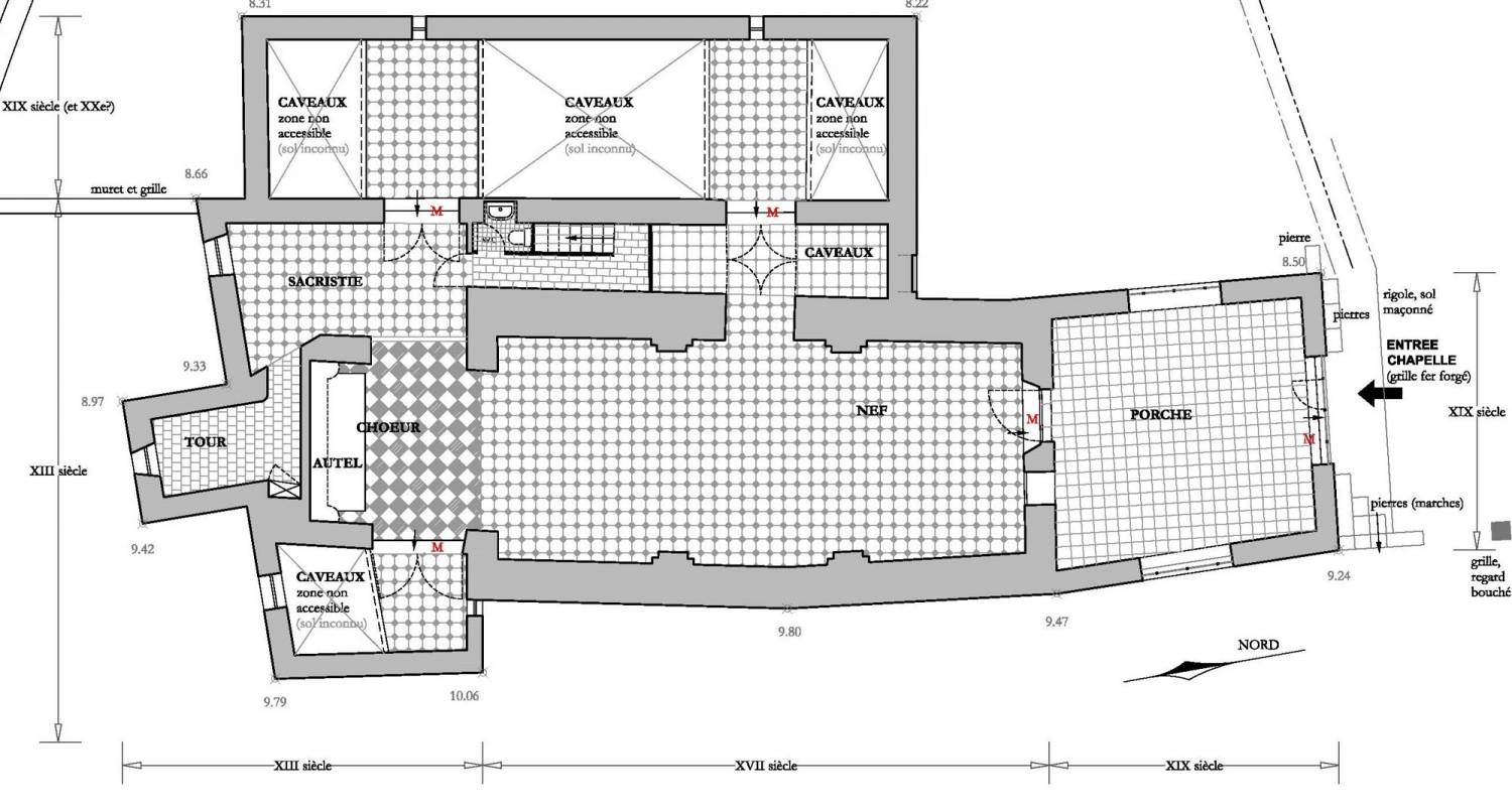
La Chapelle Saint-Jean est un vaisseau divisé en cinq temps, avec du nord au sud :
– Un porche d’entrée qui ne fait partie de la structure originelle de la chapelle, date du XVIIIe siècle, avec une porte d’accès à la chapelle qui, curieusement, n’est pas situé dans l’axe de la nef, mais légèrement sur son côté droit.
– Une nef dans l’axe classique Nord-Sud divisée en trois travées identiques soulignées par des arcs doubleaux et des voûtes d’arête. La nef se caractérise par des murs très simples, de toutes petites ouvertures côté Ouest et Est, comme c’était généralement le cas dans les chapelles provençales pour se protéger de la chaleur, et par un dallage moderne fin XIXe s. / début XXe s. rehaussé par-dessus un dallage d’origine en tommettes, mettant le niveau de la nef aligné sur celui du chœur, alors que ce dernier était à l’origine en surplomb, comme dans la plupart des édifices religieux
– Une abside à gauche du chœur avec des caveaux parmi lesquels les tombes d’Henri Guide et de son fils Léonor Guide, Officier de Cavalerie, Sous-Préfet de Grasse, et de sa femme née Emilie de Barquier, dont tous les 1.100 membres de la famille actuelle descendent.
– Une sacristie très simple et sans beaucoup d’intérêt intégrant le chœur à chevet plat. Entre le clocher et le chœur de la chapelle elle-même existe un rectangle de 9 m sur 4,50 m, en grande partie sur l’emplacement de la sacristie, orienté Est-Ouest. Cet espace recouvre probablement l’ancien bassin traditionnel où l’on baptisait les catéchumènes, à côté du baptistère octogonal.
– Une tour carrée (dont le sous bassement est octogonal) surmontée d’une couverture sous forme de petite coupole maçonnée recouverte de tuiles en écailles vernissées, et supportant un jeu de cloches en état de marche, mais dont le mécanisme est en voie de restauration.
Des caveaux sont situés de part et d’autre du chœur, au sein de la sacristie et à travers le bas-côté. Les 120 places du columbarium sont toutes soit occupées soit réservées par des membres de la famille descendants d’Henri Guide, le dernier acquéreur de la chapelle.
histoire
Cette chapelle de structure romane est l’une des plus anciennes d’Antibes et sans doute de la région.
Sa sacristie serait bâtie sur les restes d’un baptistère mérovingien remontant au VIe siècle, ayant joué au Moyen-âge un rôle important dans la vie religieuse locale.
Edifié dans un vallon protégé qui constituait un lieu de passage remarquable entre l’Ouest et l’Est d’Antibes, le baptistère surplombe un ruisseau dont le cours borde sa façade ouest.
Après le départ des romains dont beaucoup s’étaient convertis au christianisme, la chapelle a connu de nombreuses transformations avec les invasions successives d’Antibes par les Sarazins en 980, puis les pirates maures en 1280, mais aussi en 1524 par les espagnols qui ont pourchassés les populations jusque dans les églises de la région.
La partie la plus ancienne, de forme octogonale, comme le baptistère de Fréjus, est donc située derrière l’autel. L’autel lui-même avec ses deux petites absides est la partie la plus ancienne de la chapelle actuelle, difficile à dater, mais vraisemblablement du XVle siècle. La nef, elle, a été rajoutée dans sa configuration actuelle au début du XVlle siècle. La construction du porche, plus récente, est datée du début du XVIIIe siècle.
La chapelle appartenait dès 1085 aux moines de Lérins qui possédaient plus de 50 églises et chapelles dans tout l’arrière-pays. La plupart de ces chapelles tombent sous la dépendance de l’évêché de Grasse et de l’Archevêché d’Embrun lors du synode métropolitain de 1242 contre l’avis de l’Eglise d’Antibes. Les paroissiens préféraient en effet leur rattachement aux moines de Lérins et à leur l’ordre Clunisien suivant la règle de Saint Benoît plutôt qu’à celui de l’Evêché de Grasse dont l’hégémonie et la domination sur 23 villes de la région devenaient pesantes.
Mais ce rattachement à l’Evêché de Grasse fut confirmé par la Cour Comtale d’Aix en 1243 suivant une bulle du Pape Innocent IV qui avait décidé de transférer le siège épiscopal d’Antibes à Grasse. Cette dépendance à l’évêché de Grasse fut confirmée jusqu’à la Révolution, d’autant plus que l’évêché de Grasse avait repris en 1637 le contrôle du monastère de Saint Honorat aux espagnols pendant la guerre de 30 ans, avec l’aide de la Marine française dirigée par l’amiral d’Harcourt, et suite à un siège de 45 jours des îles de Lérins auquel pris personnellement part le Cardinal de Sourdis, grand ami de Richelieu.
La chapelle de Saint Jean faisait partie de la confrérie de Saint Jean-Baptiste et de Notre Dame de la Garde. Ce double patronage justifiait à la fois le vocable de Saint Jean et la protection de Saint Roch dont la statue au-dessus du porche dans la tenue traditionnelle du pèlerin avec son chien, avait pour vocation de détourner de la ville d’Antibes les épidémies, et tout spécialement la peste bubonique à laquelle elle avait miraculeusement échappé par trois fois, en 1347 lors de l’épidémie de peste noire amenée en Méditerranée par les Mongols, en 1531 lors de l’épidémie qui tua la femme de François Ier, et surtout lors de la terrible épidémie de 1580 qui frappa toute la Provence et qui décima par exemple totalement la petite ville de Cannes qui disparut quasiment de la carte. A chaque fois Antibes fut épargnée grâce à Saint Roch, mais aussi grâce à son système de fortification et de cordon sanitaire très efficace aux deux seules portes d’accès à la ville. La commune d’Antibes comptait alors plus d’une douzaine de chapelles rurales. Saint Jean est sans doute la seule qui soit conservée en bon état après la chapelle de la Garoupe.
Le 11 janvier 1765 le Sieur Jean-Antoine Cauvin, marchand de la Ville d’Antibes, fit l’acquisition de la chapelle Saint Jean pour la somme de 1.165 livres ( soit 1.500 € d’aujourd’hui, mais à cette époque la livre tournoi qui pesait 0,312 gr d’or permettait de payer un ouvrier pendant une bonne semaine … ). Cette vente a eu lieu aux enchères publiques sous la présidence de Jean Curault, « Conseiller du Roy et juge pour sa Majesté », sur la place de l’Hôtel de Ville d’Antibes, à la demande des créanciers des propriétaires, héritiers de la famille Donet. Cette vente comprenait la totalité de la propriété attenante avec un terrain de 6 hectares. Jean-Antoine Cauvin et sa femme, Françoise Lance, tombent immédiatement amoureux du site et embellissent la chapelle par la mise en place d’un autel, d’un retable, de tableaux et de statues.
Le 30 août 1789, Henri Guide, y épousa par permission spéciale en ces temps révolutionnaires, Anne Elisabeth Cauvin, fille du Sieur Jean-Antoine Cauvin, qui apporta en dot sa propriété de Saint-Jean. Henri Guide qui avait le grade d’Officier au régiment des grenadiers royaux du Languedoc était le fils de Joseph Guide, dernier Viguier Royal d’Antibes, c’est-à-dire le représentant du Roi « aux limites orientales de la France ».
Confisquée deux mois tout juste après le mariage en octobre 1789 en tant que bien du clergé devenu bien national, la chapelle est ensuite rachetée (une deuxième fois …) en 1796 pour la somme de 616 livres (les prix baissent, faute de demande…) par Henri Guide qui la sauve d’une ruine certaine et qui obtint en contrepartie le pouvoir d’y être enterré, lui, sa femme et tous ses descendants à venir. L’Assemblée Nationale n’y opposa aucune objection. C’est ainsi qu’aujourd’hui ont toujours lieu à Saint Jean des inhumations, fait assez rare dans le département pour des édifices privés, mais aussi régulièrement des baptêmes et des mariages des membres de la famille.
Leur descendance sera particulièrement prolifique puisque l’on compte à ce jour vingt-cinq familles propriétaires en indivis du domaine, soit plus de 1.100 personnes réparties sur toute la France, lesquelles se sont regroupées en « Association pour la sauvegarde la Chapelle Saint Jean » pour veiller à son entretien. Chaque année depuis 250 ans y sont régulièrement célébrées des messes, notamment le 24 juin, jour de la Saint-Jean, à la Toussaint et lors de la traditionnelle fête familiale estivale.
Les membres de la famille Guide décidèrent d’en faire leur dernière demeure en transformant le caveau de la chapelle à droite du chœur.
L’accès au terrain de la chapelle est resté libre pendant des siècles, et les résidents du quartier avaient l’habitude de venir y célébrer la Saint Jean en sautant les feux allumés la nuit dans le pré, d’y pique-niquer mais aussi de venir y jouer à la pétanque …. Malheureusement, suite à des intrusions, à des dégradations et à des vols de tableaux et d’ex-voto au début des années 90, le terrain a dû être entouré de grilles, avec un portail et une porte blindée d’accès à la chapelle qui sont venus sécuriser le site.
Pendant longtemps la messe dominicale y a été célébrée jusqu’au milieu des années cinquante, jusque dans les années 80, on y enseignait encore le catéchisme.
L’association pour la sauvegarde de la chapelle Saint Jean a été récompensée de la peine qu’elle a prise à sa restauration et à sa mise en valeur par le prix 2004 « Patrimoine Historique » décerné conjointement par le Conseil Général des Alpes Maritimes et l’Association des Vieilles Demeures de France.
Ils en parlent
- Nice-Matin : La renaissance de Saint-Jean passe aussi par vous
Le projet en images
Projets à proximité

Peinture
Bonson, Église Saint-Benoit, Triptyque de Saint-Jean-Baptiste
Bonson, Église Saint-Benoit
Provence-Alpes-Côte d’Azur, Alpes—Maritimes (06)

Édifice
Sigale, Église Saint-Michel-et-Saint-Blaise
Sigale
Provence-Alpes-Côte d’Azur, Alpes—Maritimes (06)

Édifice
Contes, Église Sainte-Marie-Madeleine
Contes
Provence-Alpes-Côte d’Azur, Alpes—Maritimes (06)





