Grand Est, Ardennes (08)
Baâlons, Église Saint-Rémi
Édifice


Si l’existence de Baâlons est attestée par les textes dès le milieu du XIIIe s., on ne trouve mention de la paroisse, placée sous le vocable de Saint-Remi, qu’au début du XIVe s. dans un pouillé du diocèse de Reims. Elle relevait alors du chapitre cathédral de Reims et du doyenné du Châtelet. Un second pouillé de 1779 indique que la seigneurie appartenait à cette date à la duchesse de Mazarin, tandis que les décimateurs de la paroisse étaient, en plus du chapitre cathédral de Reims, ceux de Sainte-Balsamie de Reims et de Saint-Vincent de Braux, ainsi que le curé de Baâlons.
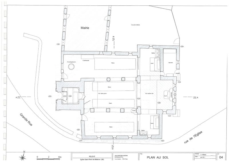
Située au cœur du bourg, l’église Saint-Rémi présente un plan allongé. Précédée d’une tour-porche, la nef se compose de trois vaisseaux ayant la particularité d’être séparés, au nord, par des arcs en plein cintre reposant sur des colonnes à tailloirs et bases lisses que l’on peut dater de la fin du XIe s. et, au sud, par des arcs brisés reposant sur des piliers carrés qui indiquent une nouvelle campagne de travaux à la fin du XIIe s. à laquelle appartiendrait également le chœur à chevet plat. Celui-ci était initialement voûté d’arêtes, comme l’attestent des colonnes d’angle en partie détruites, et a été ultérieurement flanqué de deux chapelles, ainsi que d’une sacristie au nord. Un arc triomphal aménagé au XVe s. le sépare de la nef. Une dernière campagne de travaux au XVIIIe s. s’est traduite par l’élargissement des bas-côtés, ainsi que l’aménagement d’une chapelle au nord de la tour-porche qui abrite aujourd’hui les fonts baptismaux.
Le clocher et le chœur sont construits en pierre de taille de différentes hauteurs d’assises, alors que la nef et les chapelles latérales sont élevées en moellons avec chaînes en pierre de taille. L’édifice est couvert d’ardoises et les volumes intérieurs sont entièrement plafonnés. De petites baies en plein cintre éclairent les collatéraux. Le chœur est, quant à lui, percé de quatre baies également en plein cintre de plus grandes dimensions. Les deux baies centrales sont rapprochées sous une même arcature.
Les élévations extérieures ne comprennent aucun décor sculpté, à l’exception de la tour-porche où ont été notamment remployés quelques éléments datant du XIe s. qui pourraient provenir d’un édifice antérieur, tels qu’un petit linteau à décor de rinceau surmontant une meurtrière et, surtout, un remarquable tympan monolithe en partie brisé représentant un saint évêque (saint Remi ?) entouré de deux anges (I.S.M.H.). Ces éléments font de Saint-Remi de Baâlons un des plus beaux, et rares, exemples d’église romane dans les Ardennes. Les chapiteaux à crochets des deux baies géminées du dernier niveau des façades nord et est laissent par ailleurs supposer une reprise de la tour à la fin du XIIe siècle.
Bien que l’église ne soit pas elle-même protégée au titre des monuments historiques, plusieurs éléments de son mobilier bénéficient d’une protection et méritent d’être signalés : le maître-autel à baldaquin supporté par des colonnes corinthiennes de marbre rouge des XVIIIe et XIXe s. (I.S.M.H.), une Vierge à l’Enfant du XIVe s. (cl. M.H. 1965), un Christ en croix du XVIe s. (I.S.M.H.), une Vierge à l’Enfant et un saint Nicolas du XVIIe s. (I.S.M.H.), ainsi que des fonts baptismaux en calcaire peint en faux marbre du XVIIIe s. (I.S.M.H.).
Pour la restauration de la toiture de l’église Saint-Rémi, hors celle du clocher, la Sauvegarde de l’Art Français a accordé en 2013 une aide de 10 000 €.
Mathieu Rousset-Perrier
- A. Baudon, « Excursions épigraphiques ardennaises. De Vendresse à Launois », Almanach Matot-Braine, année 1905, p. 424.
A. Longnon, Pouillés de la province de Reims, Paris, 1908, 2 vol.
H. Manceau, « Grandeurs et misères des vieilles pierres ardennaises : Omont et ses alentours. L’église de Baâlons, le château de Géraumont », L’Automobiliste ardennais, juillet-août 1955, n° 193, p. 9-19.
H. Collin, Les églises anciennes des Ardennes, Charleville-Mézières, 1969, p. 24, 26, 91-102.
H. Collin, Les églises rurales du pays de Reims et des Ardennes, Charleville-Mézières, 1974 (Les Cahiers d’Études ardennaises, 8), p. 65.
J.-M. Pérouse de Montclos (dir.), Le guide du patrimoine : Champagne-Ardenne, Paris, 1995, p. 98.
A. Meunier, Les Ardennes de clocher en clocher, Charleville-Mézières, 2002, p. 192.
S. Braun, Architecture et sculpture romanes en Champagne-Ardenne, 43100 Saint-Just-près Brioude, Éd. Créer, 2009, p. 174-175.
Recensement du patrimoine architectural et mobilier des églises des Ardennes : inventaire-patrimoine.cr-champagne-ardenne.fr/dossier/eglise-paroissiale-saint-remi/d09fe381-4eb9-49ce-b3a7-2b9fbaccfcfc








