Normandie, Seine-Maritime (76)
Bosc-Mesnil, Chapelle Notre-Dame
Édifice


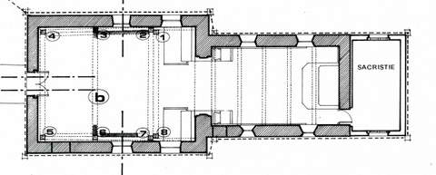
Chapelle de Perduville. Ancienne église paroissiale de Perduville, hameau rattaché à la commune de Bosc-Mesnil en 1822, la chapelle, dédiée à Notre-Dame, est un édifice de petites dimensions (22 m de long) et de grande simplicité qui, dans sa structure actuelle, ne semble pas remonter au-delà du XVIe s., en dépit de la datation romane proposée par l’abbé Cochet. Elle aurait subi d’importants remaniements au milieu du XVIIème s., voire au XVIIIème siècle. La sacristie est plus tardive.
L’édifice comprend trois parties distinctes, dans le prolongement les unes des autres. La nef, de plan rectangulaire, est surmontée d’un petit clocher couvert d’ardoises qui devait contraster avec la couverture de tuiles, utilisée à l’origine pour la nef et le chœur. Le chœur, plus étroit et moins élevé, a conservé ses ouvertures anciennes et constitue peut-être la partie la mieux préservée de l’édifice. Au sud, deux portes, actuellement murées, tranchent par leur encadrement de pierres sur les murs de moellons de grès et de silex. La sacristie, située derrière le chœur, est un appendice postérieur dépourvu du moindre intérêt.
L’intérieur, d’une grande modestie, ne renferme pas de mobilier notable, mis à part une statue d’une Vierge à l’Enfant, de marbre blanc, du XVe s., classée Monument historique.
La Sauvegarde de l’Art Français a accordé en 1997 une subvention de 60 000 F pour la réfection de la couverture de l’ensemble de l’édifice et a complété son aide en 1998 par l’octroi supplémentaire de 25 000 F, des désordres importants étant apparus dans la charpente au cours des travaux.
E. G.-C





