Nouvelle-Aquitaine, Dordogne (24)
Cantillac, Église Notre-Dame de la Nativité
Édifice


Église Notre-Dame de la Nativité. Dominant un paysage vallonné et boisé, se dresse au milieu d’un tout petit village l’église paroissiale de Cantillac, au XIIe s. prieurale O.S.B.
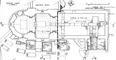
Elle se compose en plan d’un chœur en hémicycle précédé d’une travée carrée, le tout appareillé, de style roman, sous un haut clocher carré en partie refait, coiffé en bâtière, et d’une nef unique, remontée en moellon, peut-être au XVIe siècle. L’abside en grès bigarré est scandée de hauts dosserets rapprochés, coiffés sans impostes par sept petits arcs en plein cintre, sous une corniche chanfreinée à modillons nus en cavet.
Ce type d’arcature archaïsante et sévère, fréquent en Périgord, rappelle l’art du XIe s., mais n’est pas ici antérieur au XIIe dans une région très conservatrice. Trois fenêtres étroites, ébrasées seulement vers le dedans, l’une, dans l’axe, les deux autres à la naissance de l’hémicycle, éclairent l’abside, dont la toiture de lauzes est complétée en partie par des tuiles canal. Un modeste presbytère (XVIe et XVIIIe s.) s’élève au midi. Deux contreforts plats entre lesquels ouvre une baie cintrée encadrent la travée sous clocher. La nef, qu’ un décrochement met en léger retrait par rapport à celle-ci, possède vers l’est deux petites fenêtres symétriques ; celle du nord, appareillée sous un linteau échancré d’un petit arc en plein cintre, rappelle le premier art roman dans l’Ouest : réutilisation ou pastiche, nulle trace d’un moellonnage aussi ancien n’apparaissant plus dans la nef. Celle du midi porte un léger chanfrein. Non loin, une ouverture rectangulaire sous le toit donnait accès au clocher par une échelle extérieure. Il n’y pas de corniche. Le mur ouest, coiffé en bâtière, grossièrement appareillé aux angles et dépourvu de porte, conserve seulement une fenêtre tardive, placée bas. Il présente de graves désordres . Le portail est au bas de la nef, côté nord. Son ébrasement est fait de colonnettes appareillées, séparées par des gorges qui se reçoivent sur des bases prismatiques. Les voussures, de même profil sous une archivolte sommée d’une petite croix, dessinent un arc segmenté à peine brisé en son milieu. Les chapiteaux grossièrement épannelés forment bandeau. L’ensemble ressortit à un gothique tardif assez fruste mais non sans charme. Un large auvent ouvert sous toit obtus en bâtière le protège. Le sol en est formé de briques posées de chant.
À l’intérieur, l’abside, voûtée en cul-de-four sur bandeau chanfreiné, n’a d’autre décor que l’ébrasement de ses trois fenêtres, dont seule celle du centre est encadrée de deux colonnettes appareillées indiquées sommairement d’un trait de ciseau, avec ses petits chapiteaux à l’état d’ébauche. Un doubleau à deux ressauts reposant sur de larges pilastres avec, au milieu, une colonne engagée à chapiteau nu la précède. Ces deux supports et deux autres identiques, plus à l’ouest, déterminent une travée carrée voûtée d’une coupole sur pendentifs au tracé rigoureux. Le double ressaut correspondant aux arcs formerets est suivi, du seul côté nord, d’un renfoncement sous un court berceau pris dans l’épaisseur du mur, qui donne l’illusion d’un petit bras de transept. Toute cette partie orientale évoque, malgré l’aspect archaïsant de l’extérieur, un état assez avancé du XIIe siècle. La nef, rectangle d’architecture pauvre aux parois enduites, est couverte d’un plafond vétuste porté par des chevrons que soutiennent à leurs extrémités de courts étais incurvés. La fenêtre sud, proche de la travée sous clocher, porte un décor raffiné et séduisant de branches et de feuillages entrelacés, d’inspiration gothique, mais d’âge difficile à préciser vu l’état partiel de son dégagement.
La Sauvegarde de l’Art français a accordé en 1999 une subvention de 18 000 F pour une tranche de travaux touchant la restauration extérieure de la nef, très délabrée, de la charpente et de la couverture.
D.-N.





