Auvergne-Rhône-Alpes, Drôme (26)
Chavannes, Église Saint-Priest
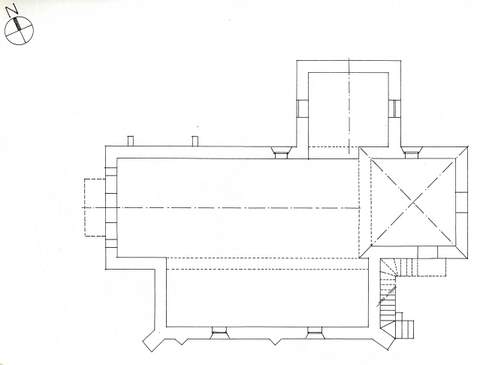
Édifice


L’église Saint-Priest est mentionnée pour la première fois le 8 juillet 1230 dans le testament d’Amédée, riche habitant du bourg voisin de Clérieux. Le mur nord de l’édifice peut remonter à cette date ou à une époque légèrement antérieure. Actuellement très lézardé, ce mur ne permet pas d’avancer des conclusions plus précises. Une pierre rectangulaire en molasse, creusée au centre d’une cavité, est signalée par M. A. Guérin, de l’Agence des Bâtiments de France, comme la pierre de l’autel de cette première église. Sur le côté sud, une chapelle dédiée à Notre-Dame de Pitié a été construite au XVe ou XVIe s. Ses deux travées sont voûtées sur croisées d’ogives. Celles-ci retombent sur des culots; ceux de l’est sont décorés d’écus dont les armoiries devaient être peintes. Un bénitier en marbre occupe une niche surmontée d’un arc en accolade. Dans la chapelle suivante, sous un autre arc en accolade, un placard creusé dans le mur est fermé par une jolie porte en bois peint qui a gardé ses peintures anciennes. Le chœur a des stalles en noyer de la fin du XVIIIe s. ou du début du XIXe s. Dans· une niche du mur est, une statue en bois représente saint Antoine. L’autel de la chapelle Notre -Dame de Pitié est surmonté d’une Vierge à l’Enfant, également en bois doré. On a aussi conservé le chemin de croix du XIXe s. et des gravures intéressantes en noir et blanc. En 1557-1558, les troupes protestantes détruisirent le chœur et la toiture de l’église. Le 19 novembre 1568, il est ordonné à Jean Rabot, chanoine de Saint-Barnard de Romans, de faire réparer le chœur de l’église de Chavannes. Le clocher actuel a été construit vers 1830, selon les délibérations du conseil municipal de l’époque. Des travaux de réfection des maçonneries extérieures, approuvés par M. Franceschini, architecte des Bâtiments de France, ont été entrepris en 1994. La Sauvegarde de l’Art Français a donné 40 000 F.
E. C.


