Grand Est, Aube (10)
Fay-lès-Marcilly, Église Saint-Privat-et-Saint-Maudé
Édifice


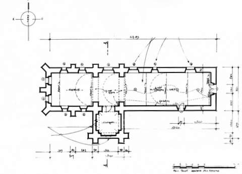
D’après d’Arbois de Jubainville, l’église paroissiale Saint-Privat et Saint-Mandé est un édifice construit au xiie s. avec quelques remaniements, principalement dans les fenestrages, au xvie s.Le plan très simple est à une nef unique séparée du chœur à chevet plat par une travée déterminée par deux puissants arcs diaphragmes. L’ensemble forme un faux transept. De la voûte en bois du xvie s. en berceau sur entraits apparents, signalée par d’Arbois de Jubainville, ne subsistent qu’en entrait et un poinçon dans le chœur. Celle-ci est remplacée par un berceau plein cintre en plâtre sur lattis de bois. Au nord du faux transept, s’élève un puissant clocher sur plan carré. Son niveau inférieur était voûté comme en témoigne le départ d’ogives et d’arcs formerets supportés par des culots. Les murs intérieurs ont gardé des vestiges importants de peintures murales du xive s. Les traces d’une litre funéraire sont visibles dans le chœur. Lors de la réfection prévue des enduits intérieurs du chœur et du transept, des sondages seront faits en vue de déceler d’autres peintures.Le maître-autel et son retable du xviiie s. en bois polychrome ont un décor « rocaille » très intéressant ; le Sacré-Cœur du xixe s. recouvre une peinture plus ancienne. Deux statues du xvie s., Vierge à l’Enfant et saint Évêque, encadrent l’autel. Elles sont classées monuments historiques.Une première campagne de travaux, pour laquelle la Sauvegarde de l’Art français a donné 50 000 F en 1987, a concerné la réfection des murs de la nef et du clocher. La deuxième campagne l’a complétée par la reprise des murs extérieurs du chœur, de la moitié de la nef, par un drainage autour de l’église pour éviter l’humidité et par la réfection intérieure du chœur et du transept. La Sauvegarde de l’Art français a accordé 100 000 F en 1991.



