Centre-Val de Loire, Eure-et-Loir (28)
Guainville, Église Saint-Pierre
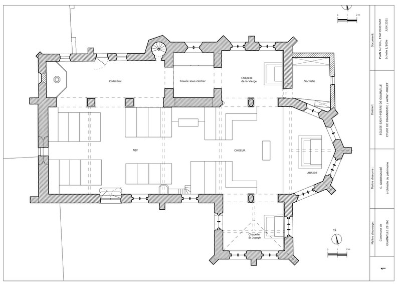
Édifice

Église détruite pendant la guerre de 100 ans et reconstruite à partir de la fin du 15e siècle
Sa façade occidentale donne sur une vaste parcelle privée accessible par une petite porte au fond de la nef qui ne paraît pas antérieure au 18e siècle. Le portail principal est reporté sur le flanc sud de la nef : portail gothique de la fin du 15e siècle
On distingue 2 époques principales : une reconstruction générale autour de 1500 et une reconstruction partielle autour de 1700 concernant le clocher et le collatéral nord. La 3e époque est le dix-neuvième siècle pour diverses modifications et l’adjonction de la sacristie.
Similitude avec l’église voisine du Mesnil Simon : abside à 4 pans, clocher au milieu du collatéral, même pierre de Vernon
Le projet ambitieux initié autour de 1500 est cependant resté inachevé, le voûtement en pierre envisagé n’a pas été construit. Un collatéral a pu être projeté sur le collatéral sud de la nef. Le collatéral nord semble être resté aussi inachevé dans un premier temps au début du 16e siècle ce qui expliquerait que sa porte extérieure soit d’esprit gothique tardif tandis qu’en partie haute les 3 fenêtres, la corniche, le contrefort se rattachent au style de la 2nde renaissance. Le chantier aurait donc connu un temps d’arrêt entre 1510 et 1560 au moins.
Le niveau supérieur du clocher date aussi de la 2nde moitié du 16e siècle ou du 17e siècle. On y trouve des analogies avec les façades des collatéraux de l’église paroissiale d’Anet.
L’ancienne flèche était plus élancée. Elle fut frappée par la foudre à la fin du 17e siècle et reconstruite plus basse.
Par sa conception, la monumentale charpente à chevrons formant ferme évoque la fin du 16e ou le 17e siècle notamment par la grande abondance des fermes-chevrons rayonnantes de l’abside ( le projet de voûtement de la nef devait vraiment être définitivement abandonné. La hauteur des n’est pas compatible avec un voûtement )
Lambris formant voûte refait en pin au cours du 20e siècle sur la nef. Seul le médaillon sommital a été conservé qui porte l’inscription « chorus 1773 ».
Vestige du décor peint sur la voûte du chœur : médaillon et colombes part sur fond de ciel et nuées. A noter que leurs rayures basses de la charpente a été tronquée par rapport à sa conception initiale puisque les 2 entrées rayonnantes ont été coupés.


































