Centre-Val de Loire, Loiret (45)
La Selle-en-Hermoy, Église Saint-Pierre-aux-Liens
Édifice


NB : La notice publiée ci-dessous est une notice provisoire, la notice scientifique étant en cours de rédaction.
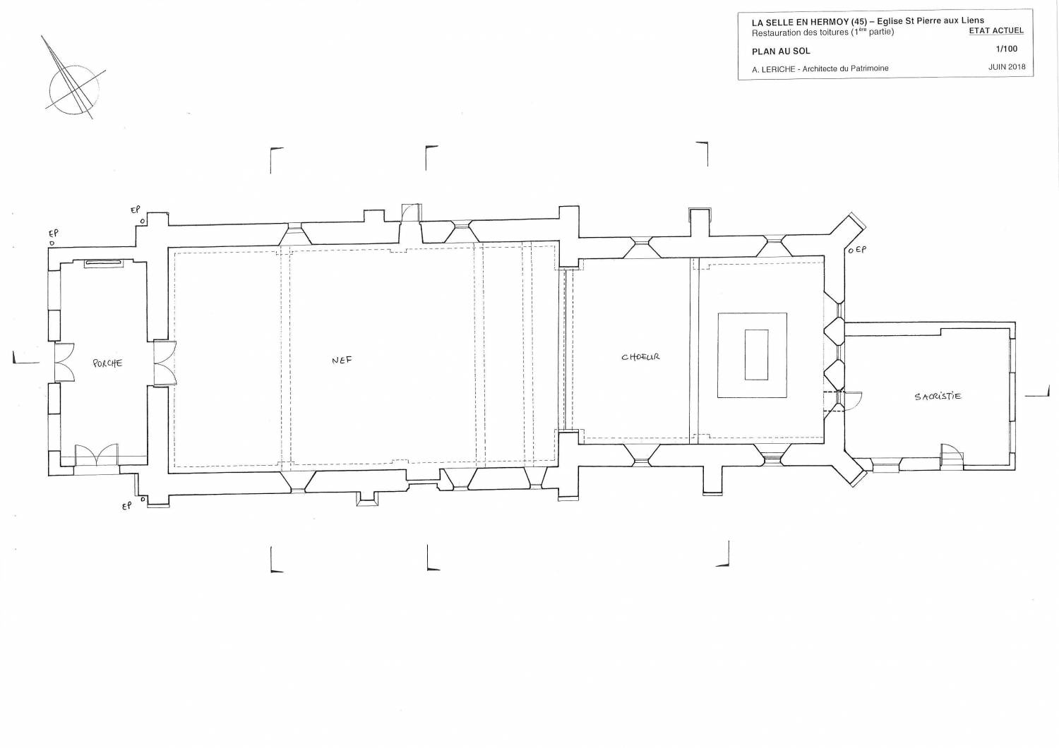
Cet édifice est composé d’une nef et dans son prolongement d’un chœur d’une largeur un peu inférieure. A la jonction des deux volumes, s’élève un clocher très élancé. A l’ouest, un porche est adossé au pignon occidental, tandis qu’une sacristie est accolée au chevet.
Des origines du XII-XIIIe siècle, il reste les petites baies de la nef et une partie des charpentes. Des modifications ont été apportées au XVIe siècle, dont le clocher.
C’est au milieu du XIXe siècle qu’ont été réalisées les grandes modifications intérieures, qui sont les sources de désordres importants actuels. D’autres transformations furent opérées dans les années 1960, suite à la réforme du Concile Vatican II.








