Grand Est, Marne (51)
Val-de-Meuse, Église Saint-Félix
Édifice


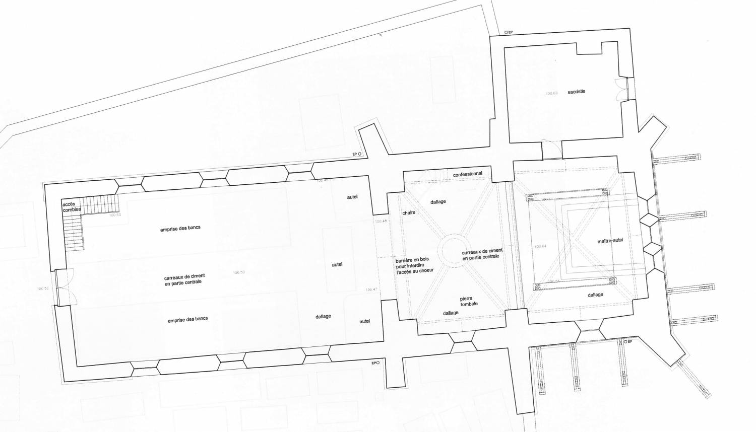
L’église Saint-Félix de Maulain, petit hameau du plateau du Bassigny, englobé dans la récente commune de Val-de-Meuse, est un édifice qui affecte la forme d’un vaisseau unique long de vingt cinq mètres environ. La nef, couverte d’un lambris, et close d’un simple mur-pignon, est éclairée par trois baies en plein centre percées dans chaque mur gouttereau. Elle paraît ne pas remonter au-delà du XVIIe s., et pourrait bien avoir été reconstruite après les ravages de la Guerre de Trente Ans qui n’épargna pas la région. Le chœur compte deux travées épaulées par de solides contreforts à couronnement taluté sous une corniche à modillons. L’implantation oblique des contreforts du chevet indiquerait une construction du XVe s., mais restée particulièrement fidèle à l’arc du XIIIe s., puisqu’on trouve encore des voûtes d’ogives quadripartites, avec des arcs au profil torique en amande, alors que les travées sont puissamment délimitées par d’épais arcs doubleaux et formerets. La formule du triplet du chevet s’inscrit encore dans cette veine conservatrice. Sur la première travée du chœur est établi un clocher charpenté, à souche carrée et flèche à huit pans, dont les bois abîmés, longtemps exposés aux intempéries avant réfection de la couverture, lui faisaient prendre un gîte dangereux, jusqu’à menacer de s’effondrer sur l’église. La Sauvegarde de l’Art Français a accordé en 1994 une aide de 90 000 F pour la restauration du clocher.
D. S.








