Centre-Val de Loire, Loiret (45)
Gaubertin, Église Saint-Aubin
Édifice


DESCRIPTION
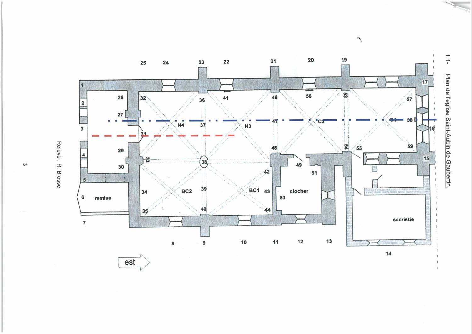
L’église se compose d’une nef à deux travées, doublée au sud d’un bas-coté à deux travées également. Quant au choeur à chevet plat, il débute par un avant-choeur auquel est accolé au sud le clocher, couvert en bâtière.
HISTOIRE
L’église Saint-Aubin se trouve au milieu du cimetière, à l’extrémité du parc du château de Gaubertin. Elle en devint officiellement l’église après la guerre de Cent Ans qui vit la disparition de l’église du bourg de Gaubertin.
Les parties les plus anciennes de l’actuelle église, tel que la petite baie en façade, peuvent être datées de la fin du XIe siècle. Le choeur et ses voûtes ont été re-construit au XIIIe s. comme l’indiquent les baies en triplet au chevet ; la nef et le bas-côté datent du XVe s. tandis que le porche aurait été repris entre le XVIe et le XVIIIe s., au vu du modèle de l’arc surbaissé, très courant et donc difficilement datable.
Elle fut restaurée une première fois en 1868, une sacristie fut ajoutée en 1889 et une remise fut adjointe au porche à la toute fin du XIXe s. pour entreposer le corbillard municipal. Les baies, notamment sur le bas-côté, furent également agrandies au XIXesiècle. Ce bas-côté n’a jamais été couvert de voutes en bois comme le montrent ses petits contreforts. A l’intérieur, les voûtes de la nef et du bas-côté, ainsi que les piliers de soutènement, datent des XVe et XVIe s. et ont été reconstruites au XIXe. Des éléments du XIIe s. ont été sauvegardés.
L’église abrite deux plaques funéraires, l’une rappelant les sépultures de Henry Marie Benoist de la Barre, de son épouse Marie Marcelat (┼ 28/11/1754) et de leur fille Elisabeth (┼ 5/5/1752), l’autre indiquant une fondation de messe accordée par Jehan De Bougy, seigneur de Gaubertin en 1514, qui mourut à la bataille de Marignan en 1515.
Le projet en images
Projets à proximité

Édifice
Courcelles, Chapelle Saint-Hubert
Courcelles
Centre-Val de Loire, Loiret (45)

Peinture
Orléans, église Saint-Pierre-du-Martroi, Cycle de la vie de Saint-Pierre
Orléans, église Saint-Pierre-du-Martroi
Centre-Val de Loire, Loiret (45)

Édifice
Isdes, Église Notre-Dame
Isdes
Centre-Val de Loire, Loiret (45)



