Grand Est, Marne (51)
Les Mesneux, Église Saint-Rémi
Édifice
NB : La notice publiée ci-dessous est une notice provisoire, la notice scientifique étant en cours de rédaction.
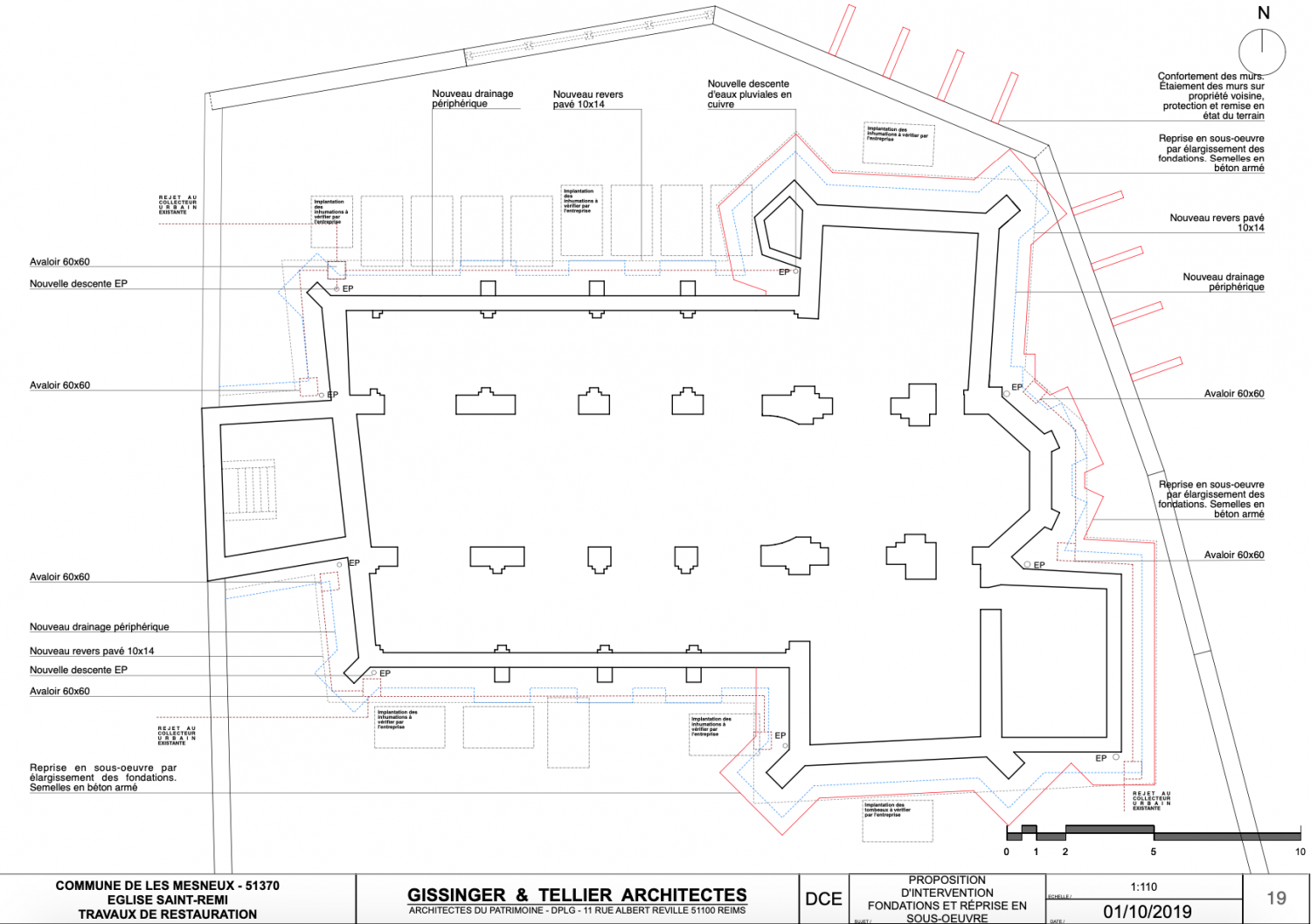
L’édifice est composé d’une nef primitive, d’un clocher et d’un transept datable du XIIème siècle. Le reste de l’édifice semble avoir été réédifié au cours du XVème siècle comme en atteste les voûtes et grandes baies des bras Nord et Sud du transept, tout comme les collatéraux et l’adjonction de l’avant porche.
Les maçonneries sont constituées de pierre de taille et de moellons en calcaire, les charpentes sont en bois sur l’ensemble de l’édifice, l’ensemble est couvert par une couverture en ardoise naturelle.
Le cimetière entoure l’église et l’exhaussement du sol par rapport à la rue est contenu par un mur de clôture périphérique en moellons et pierre de taille.
Altérée par les bombardements de la Première Guerre Mondiale, l’église a été restaurée à l’identique d’après les relevés et les photographies conservées. L’abside du choeur reconstruite après la Première Guerre Mondiale restitue l’architecture du chevet dans son état probable du XIIème siècle.
Le projet en images
Actualités liées

Immobilier
La restauration de la collégiale Notre-Dame-de-l’Assomption
Manifeste d’une architecture classique des XVIIe et XVIIIe siècles, la collégiale – telle que nous la connaissons aujourd’hui – fut construite en 1629 […]

Immobilier
Le comité de janvier 2018 apporte un nouveau souffle à 23 églises
L’année 2018 commence sous les meilleurs auspices pour les 23 églises sélectionnées par le comité de la Sauvegarde, le 30 janvier. Auvergne-Rhône-Alpes Voreppe […]

Mobilier
CONCERT ORGUE ET JAZZ À REIMS POUR SAUVER L’ŒUVRE D’ENDERS
Un concert inédit pour mettre le patrimoine en musique et rassembler les générations. « Il y a toujours de la joie dans la […]







