Bourgogne-Franche-Comté, Yonne (89)
Saint-Germain-des-Champs, Église Saint-Germain d’Auxerre
Édifice


NB : La notice publiée ci-dessous est une notice provisoire, la notice scientifique étant en cours de rédaction.
L’église Saint-Germain d’Auxerre de Saint-Germain-des-Champs est l’un des édifices religieux remarquables de l’Avallonnais.
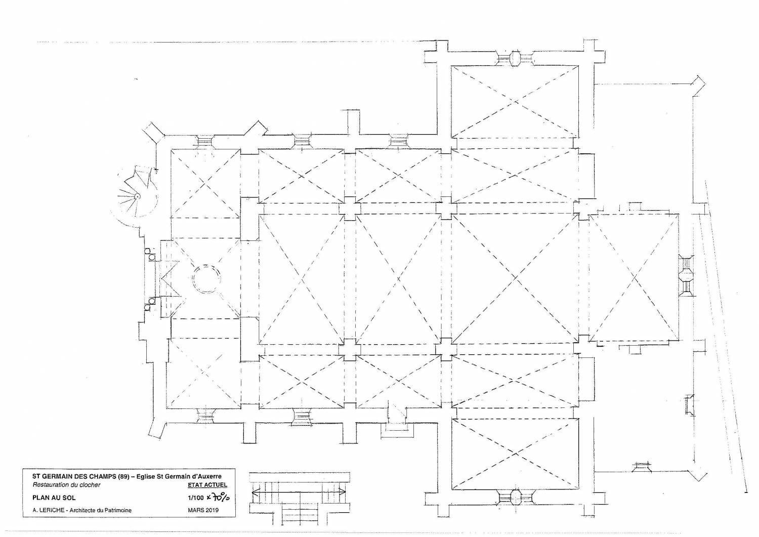
Composé d’une nef à trois vaisseaux, terminé par un chevet plat, l’édifice impressionne par son imposant clocher-porche, situé à l’Ouest.
Érigée au XIVe siècle, l’église Saint-Germain d’Auxerre a été fortement modifiée au cours du XIXe s., d’abord par la construction des deux bas-côtés puis par celle du chœur, du chevet et des deux bras du transept.
D’après l’étude d’Antoine Leriche, architecte du patrimoine.
Le projet en images
Actualités liées

Immobilier
Comité d’action d’Octobre 2021
Le 14 octobre 2021, le comité s’est réuni pour apporter son expertise et son aide à 21 églises et chapelles. De jolies découvertes […]

Communication
Découvrez les coulisses de La Sauvegarde !
À l’occasion des Journées Européennes du Patrimoine, la Sauvegarde de l’Art Français vous ouvre ses portes gratuitement le temps d’une journée : le […]

Communication
« Antiquités en série » : l’affaire Dossena vue par le duc de Trévise
En 1928, l’affaire des faux d’Alceo Dossena fait grand bruit dans le milieu des musées et des collectionneurs du monde entier. Depuis une […]
Projets à proximité

Édifice
Ancy-le-Franc, Chapelle de l’exaltation de la Sainte Croix du Cosquyno
Ancy-le-Franc
Bourgogne-Franche-Comté, Yonne (89)

Édifice
Mailly-le-Château, Chapelle du cimetière
Mailly-le-Château
Bourgogne-Franche-Comté, Yonne (89)

Édifice
Sainpuits, Chapelle Saint-Roch du château des Barres
Sainpuits
Bourgogne-Franche-Comté, Yonne (89)


