Nouvelle-Aquitaine, Dordogne (24)
Saint-Vincent-le-Paluel, Église Saint-Vincent le vigneron
Édifice


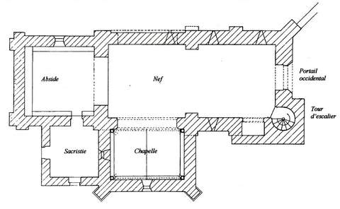
Église Saint-Vincent « le Vigneron »: cette église d’origine romane forme en plan un rectangle de 20 m de long, dont l’élévation est scandée de contreforts plats terminés en glacis. Elle a perdu sa corniche. Une voûte en berceau brisé couvrait le volume intérieur, coupé à l’entrée du chœur par un arc triomphal en arc brisé. Elle a été remplacée par un berceau en plâtre, lui-même détruit pour laisser apparaître, dans l’état actuel des travaux, un plafond plat à solives apparentes. L’édifice a été remanié à l’époque gothique et depuis. En particulier, la façade a été refaite à la fin du Moyen Âge avec un tympan nu, encadré d’un arc brisé à voussure torique. Elle est prise entre deux contreforts d’angle, celui du nord beaucoup plus volumineux, car il contient la cage rectangulaire de la vis d’accès au comble, éclairé par de petites ouvertures allongées et chanfreinées. Un oculus est percé à mi-hauteur de cette façade très élancée dont le pignon aigu, couronné d’une croix antéfixe, forme clocher-mur ; celui-ci comporte deux étages d’arcades jumelles dont seule la paire inférieure est porteuse de cloches. Deux chapelles de volume inégal ont été ajoutées, l’une au nord de la nef, avec contreforts d’angles obliques et fenêtres cintrées et moulurées (XVIe s. ?), l’autre au midi, dont ne subsistent que l’arc d’entrée, le formeret nord et des vestiges du voûtain adjacent du côté de l’actuel cimetière. La présence dans le gouttereau, à l’ouest de ces vestiges, d’une fenêtre romane d’origine, petite meurtrière surmontée d’un linteau qu’échancre un minuscule arc en plein cintre, ne permet pas d’attribuer à l’église romane une date très ancienne. En fait il s’agit, selon toute probabilité, d’un édifice de la seconde moitié du XIIe s., ces ouvertures, apparues avec le premier art roman de la France de l’Ouest, s’étant longtemps perpétuées au XIIe s. en Périgord, Angoumois et Saintonge aussi bien qu’en Agenais et en Quercy.
Le chœur de l’église, dans son état actuel, est dépourvu de caractéristiques particulières, si l’on excepte une série de petits arcs sur corbeaux qui subsistent intérieurement du côté nord. Son mur plat oriental, aveugle, se termine par un pignon aigu.
Sur la paroi orientale du chœur, est adossé un grand retable classique en bois avec un crucifix peint en son centre. Au-dessus, un panneau rectangulaire à ailerons, coiffé d’un fronton triangulaire, est peint d’une Nativité. L’autel qui l’accompagne, en bois peint et doré, supporte un tabernacle assez animé, avec scènes de la vie du Christ et galerie supérieure pour l’exposition du Saint-Sacrement. L’ensemble, de style populaire, est néanmoins très monumental et d’un vif intérêt. Un bénitier en pierre porte la date de 1748.
La Sauvegarde de l’Art français a accordé 5 000 € en 2005 pour des travaux de consolidation et d’assainissement.
Pierre Dubourg-Noves





