Bourgogne-Franche-Comté, Yonne (89)
Thorey, Église Saint-Martin
Édifice


L’église est située au centre du village. Un cimetière l’entourait jusqu’en 1924. Sous l’Ancien Régime, elle fut le siège d’une cure du diocèse d’Autun, archiprêtré de Semur et dépendait du prieuré bénédictin de Glanot à Mont-Saint-Jean.
Il est probable que l’église a été construite à la fin du XIIe s. sur un plan orienté, en croix latine. Le chœur aurait été reconstruit ou modifié aux XIIIe-XIVe s., par la famille d’Eguilly, seigneur du lieu. On procède à l’élargissement de la nef au XVIe s. sans doute lors de l’accroissement de la population, mais simplement du côté nord en raison de la construction de la chapelle sud, dite sainte Barbe, fondée en 1538 par Hugues Briotet, prêtre, Denise, sa sœur et Edme Drouhin, son neveu. Le chœur et les chapelles sont ornés de peintures murales aux XIIIe et XVIe s., puis un faux appareil est peint aux XIVe -XVe s. Les murs sont recouverts d’un badigeon au XVIIe s., lorsque des litres funéraires, aux armes des seigneurs du lieu, dont celles de François de Choiseul de Chevigny, décédé vers 1622, sont tracées tant à l’intérieur qu’à l’extérieur. Des travaux d’aménagement sont effectués au XVIIIe s., lors de l’installation d’un autel et d’un retable, ce qui nécessite la fermeture de la baie axiale du chœur. Une sacristie est ajoutée sur le côté nord du chœur en 1843. La couverture du clocher est refaite en 1897. La démolition du mur nord est décidée en 1932, ce qui entraîne la dépose de la couverture en laves, de la charpente et de la fausse-voûte lambrissée.
L’ensemble a été entièrement restauré de 2013 à 2017 (architecte Dominique Jouffroy).
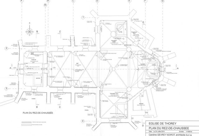
L’église de plan orienté, comporte un chœur d’une travée couvert d’une voûte sur croisée d’ogives, une croisée du transept couverte d’une voûte à clé annulaire et des bras voûtés en berceau brisé.
La nef a reçu un berceau lambrissé à chevrons portant fermes. La chapelle seigneuriale, ouverte au sud, communique avec la nef par un arc brisé et avec le chœur par un hagioscope. Elle est couverte par une voûte à liernes et tiercerons.
Les baies sont en plein cintre ou à réseau ; la porte ouest à linteau en accolade et piédroits moulurés est abritée par un auvent. Les murs sont épaulés par des contreforts angulaires. Le clocher, au toit en bâtière bordé par une corniche à modillons concaves, est ouvert au niveau du beffroi par des baies géminées en plein cintre aux colonnettes à chapiteaux à crochets. Deux lucarnes, à ailerons et fronton triangulaire brisé, amorti par une croix, éclairent les combles.
Le mobilier consiste en une pierre tombale d’un chevalier, 1345 (Identifié comme étant un membre de la famille de Créqui, en raison de la présence du créquier, pièce héraldique qui représente un arbre imaginaire dont les 7 branches portent des fruits : les créquiers, prunes sauvages en Picardie au Moyen-âge » ; deux tableaux aux sujets rares : La Confirmation des statuts de l’ordre des Dominicains par le pape Honorius III et Le Miracle de saint Hyacinthe, XVIIe s. ; un ensemble constitué par l’autel majeur, son retable, deux reliquaires, un dais d’exposition et une colombe du Saint-Esprit, en bois doré XVIIIe s. ; des statues : Education de la Vierge, Vierge de Pitié, Sainte Barbe, la Charité de saint Martin, XVIe s.
Bernard Sonnet
Bibliographie :
Archives communales
J. Denizot, Encyclopédie de la Côte-d’Or, Ms 1727-1732, BM Dijon, 1866-1915.
A. Vittenet, Note sur une pierre tombale de l’église de Thorey-sous-Charny, Mémoires de la commission des antiquités de la Côte-d’Or, t. 19, 1927 ; La litre de Thorey-sous-Charny, Mémoires de l’Académie des sciences, arts et belles-lettres de Dijon, t. 183, 1932.
Le projet en images
Actualités liées

Mobilier
Campagne étudiante du « Plus Grand Musée de France » 2019

Communication
La Sauvegarde dans l’Yonne, à la rencontre du patrimoine religieux du Vézelien
Le 16 octobre 2017, une délégation de la Sauvegarde de l’Art Français s’est rendue à Vézelay pour y rencontrer les acteurs locaux du […]

Mobilier
Vidéo – La Madeleine dans le Désert, église Saint-Maurice de Sens
Projets à proximité

Édifice
Ancy-le-Franc, Chapelle de l’exaltation de la Sainte Croix du Cosquyno
Ancy-le-Franc
Bourgogne-Franche-Comté, Yonne (89)

Édifice
Pacy-sur-Armançon, Chapelle du cimetière
Pacy-sur-Armançon
Bourgogne-Franche-Comté, Yonne (89)

Édifice
Escamps, Église Saint-Georges
Escamps
Bourgogne-Franche-Comté, Yonne (89)



