Hauts-de-France, Nord (59)
Clairfayts, Chapelle de la Nativité à Epinoy
Édifice


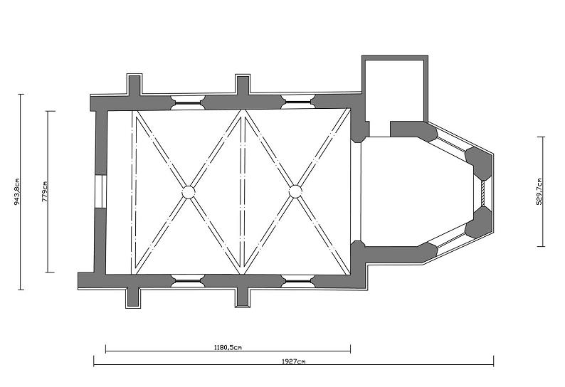
Chapelle de la Nativité-de-la-Vierge, à Épinoy. Située en Avesnois, dans le hameau d’Épinoy rattaché en 1825 à la commune de Clairfayts, cette fort élégante chapelle relevait de l’abbaye voisine de Liessies. Élevée à la fin du XVe s. dans un beau style gothique[1], elle comprend une nef de deux travées et un chœur nettement plus modeste, terminé par une abside à trois pans. Construites en briques de belle couleur orangée, ses hautes travées sont rehaussées de pierre bleue appareillée formant les soubassements, les chaînes d’angle en besace, les encadrements des fenêtres, les hauts contreforts à trois ressauts et les corniches à double mouluration. Aujourd’hui condamnée, une porte s’ouvrait sur le côté, sous un arc en accolade au profil original, très éloigné du type en anse de panier généralement adopté à cette époque. Le comble à forte pente est surmonté, à l’ouest, d’un petit clocher en charpente.
Moins élevé, mais de facture tout aussi soignée, le chœur est entièrement fait de pierre bleue, les briques y étant remplacées par des assises irrégulières de pierre de petit appareil.
A l’intérieur, les deux travées de nef sont couvertes de voûtes sur croisées d’ogives alliant la maçonnerie de briques pour les voûtains et la pierre bleue pour les nervures, les clés et les culots.
Élevé dans une phase relativement tardive du gothique, cet exceptionnel édifice allie à une élégance incontestable une sobriété non moins remarquable. Vraisemblablement privé de ses travées occidentales, ruinées au cours des guerres, il dut être restauré dans ses parties hautes au cours du XVIIe siècle.
En 2014, la Sauvegarde de l’Art français a participé à hauteur de 20 000 €, dont 10 000 au titre du mécénat Duprez-Mulliez, aux travaux d’urgence portant sur la reprise des contreforts, la confortation des maçonneries, la remise en état des charpentes et la réfection générale des couvertures.
Philippe Seydoux
[1] Peut-être à l’initiative de Michel de Sars, seigneur de Clairfayts, qui fut prévôt de Maubeuge au XVe siècle.
Le projet en images
Actualités liées

Communication
Grand Prix Pèlerin du patrimoine 2018 : deux projets récompensés par la Sauvegarde
Cette année encore, le Pèlerin magazine a récompensé des projets de restauration d’œuvres et d’édifices en péril. Sur les six projets primés, deux […]

Communication
L’Actu du Patrimoine : La restauration du retable d’Issenheim célébrée en musique, Vers la fin du mécénat ?
Chaque semaine, la Sauvegarde de l’Art Français sélectionne pour vous 5 informations phares de la semaine. L’occasion de revenir sur l’actualité du patrimoine […]

Immobilier
Mobilisons-nous pour Notre-Dame des Anges de Tourcoing
Samedi 21 septembre était célébré le début des travaux de l’église Notre-Dame des Anges à Tourcoing, dans le Nord. A cette occasion, le […]






